Auszeichnung 2015

Umbau und Sanierung Jurastrasse 59, Bern

Jurastrasse 1 3000px Jurastrasse 2 3000px Jurastrasse 3 3000px Jurastrasse 4 3000px jurastrasse plan 3000px

Auftraggebende:

Immobilien Stadt Bern

Autorenschaft/Architektur:

Kast Kaeppeli Architekten BSA, Bern

Bauingenieur:

WAM Planer und Ingenieure AG, Bern

Elektroplanung:

EPS Elektroplanung Schneider AG, Münchenbuchsee

HLK-Planung:

Eicher + Pauli AG, Bern

Bauphysik:

Grolimund & Partner AG, Bern

Fotografie:

Rolf Siegenthaler, Bern

Fertigstellung:

2013

Adresse:

Jurastrasse 59, 3013 Bern

 

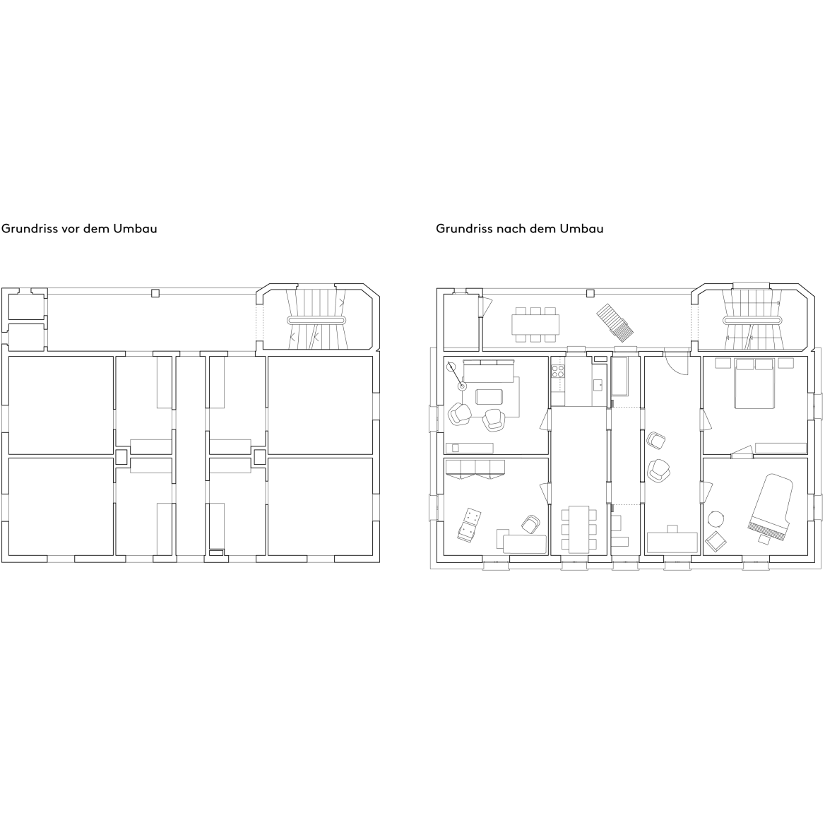
Zahlreiche, als historisch wertvoll eingestufte Arbeiterwohnhäuser aus der frühen Industrialisierung sind schon abgebrochen worden, weil keine wirtschaftlichen Lösungen für die Anpassung der Grundrisse, der Gebäudetechnik und des Komforts an zeitgemässe Standards gefunden werden konnte. Preisgünstiger Wohnraum verschwindet und sozial schwache Mieter werden aus den Quartieren verdrängt. Nicht so im Falle der städtischen Liegenschaft Jurastrasse 59 in Bern. Der Entscheid der Immobilien Stadt Bern zur Modernisierung des Arbeiterwohnhauses von 1875 war mutig. Die Architekten lösten ihrerseits die Aufgabe ebenso einfach wie präzise. Durch ein paar messerscharfe Eingriffe entstanden aussergewöhnliche Grundrisslösungen, wie sie für Neubauten kaum konzipiert werden.

Die Ausgangslage war äusserst schwierig. Pro Geschoss gab es vier Kleinstwohnungen mit nur einem Zimmer, die von einem schmalen mittleren Flur, über eine kleine Küche erschlossen wurde. Die Toiletten befanden sich in der offenen rückseitigen Laube mit Treppenhaus. Durch Rückbau der Trennwände zwischen den Küchen entstand ein neues Raumsystem von drei parallel verlaufenden schmalen Korridoren, die neu als Flur, als Bad und als Küchen genutzt werden. Quer zu diesen Funktions-Korridoren werden die vorhandenen Zimmertüren zu zwei parallelen Enfiladen. Es entstehen Durchblicke in alle Richtungen. Dieselbe Sorgfalt und Sensibilität findet sich auch in der Fassadenverkleidung. Das Prinzip der ursprünglichen Schindelfassade erfährt eine zeitgemässe Neuinterpretation durch eine geschuppte Bretterverkleidung. In einem zeittypisch anonymen grauen Farbanstrich gehalten, betont das Haus die glanzlose Stringenz eines einfachen Arbeiterwohnhauses.

Speziell hervorzuheben ist der denkmalpflegerische Umgang mit dem Haus. Er emanzipiert sich von der üblichen Collage von Alt und Neu zugunsten einer Haltung, die ein Gebäude im Sinne des ihm zugrundeliegenden Wesens und Inhalts transformiert. Das Ergebnis ist eine zeitgemässe, eigenständige und ganzheitliche Architektur, die unaufgeregt durch noble Zurückhaltung glänzt und damit das Profane eines Arbeiterwohnhauses in eine zeitgemässe Sprache übersetzt. Das Projekt ist für Modernisierungsvorhaben vorbildlich und zeigt, dass Bauten wirtschaftlich, sozial und ökologisch nachhaltig erhalten und umgenutzt werden können, wenn sich Architekten und Bauherren von herkömmlichen Standardvorstellungen emanzipieren.

Philippe Cabane

MA Soziologe, MA Städteplaner BSA, Basel

Load more